REQUEST A TOUR If you would like to see this home without being there in person, select the "Virtual Tour" option and your agent will contact you to discuss available opportunities.
In-PersonVirtual Tour

$65,000
Est. payment /mo
7,840 Sqft Lot
UPDATED:
Key Details
Property Type Vacant Land
Listing Status Active
Purchase Type For Sale
Subdivision Lake Panorama
MLS Listing ID 3980517
HOA Y/N No
Annual Tax Amount $742
Tax Year 2024
Lot Size 7,840 Sqft
Property Description
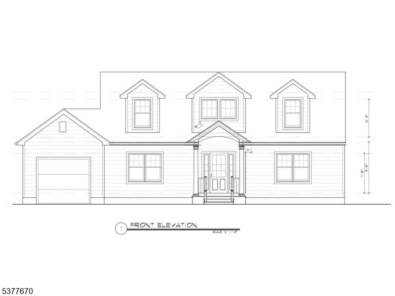
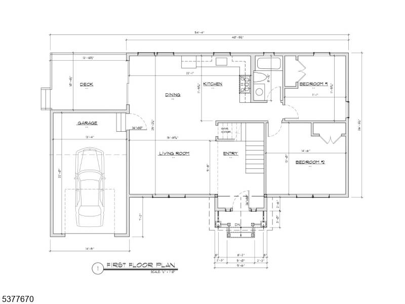
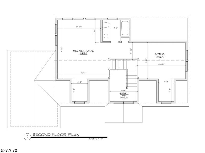
Newly installed two-bedroom septic system, complete with engineering plans and a survey featuring architectural drawings ready for your dream home.This property is primed and ready for development, as all plans adhere strictly to local zoning regulations. The package includes detailed architectural drawings that provide you with a solid foundation to start your project. These plans have been meticulously crafted to make the most of the available space, offering a comfortable and functional layout for your new home. Situated in a stunning lake community, this property offers more than just a place to build?it offers a lifestyle. Enjoy a variety of recreational activities such as boating, fishing, and swimming, right at your doorstep. The community is also known for its friendly atmosphere and active social scene, making it easy to feel right at home. Turnkey Ready: With a septic system and all necessary plans in place, you?re ready to build, Compliance: All designs align with zoning guidelines, ensuring peace of mind, Community: Enjoy the benefits of living in a thriving lake community, Potential and Value: An investment in your future, this property promises a blend of tranquility and modern living. Make your dream of lakeside living a reality. This is more than just an opportunity to build a home; it?s an invitation to create a lifetime of memories. Don?t miss out on the chance to craft your perfect retreat in this idyllic setting
Location
State NJ
County Sussex
Interior
Inclusions See Remarks
Building
Lot Description Open Lot
Sewer Septic System on Site
Water None
Schools
Elementary Schools Cedar Mtn
Middle Schools Glen Mdw
High Schools Vernon
Others
Senior Community No
Miscellaneous Association Fee
Read Less Info

Information deemed reliable but not guaranteed. Copyright © 2026 Garden State Multiple Listing Service, L.L.C. All rights reserved.
Listed by GLOBAL REAL ESTATE PRO
GET MORE INFORMATION

QUICK SEARCH
- Homes For Sale in Norristown, PA
- Homes For Sale in Jamison, PA
- Homes For Sale in Garnet Valley, PA
- Homes For Sale in King of Prussia, PA
- Homes For Sale in Warminster, PA
- Homes For Sale in Langhorne, PA
- Homes For Sale in Conshohocken, PA
- Homes For Sale in Southampton, PA
- Homes For Sale in Collegeville, PA
- Homes For Sale in Lafayette Hill, PA
- Homes For Sale in Willow Grove, PA
- Homes For Sale in Blue Bell, PA
- Homes For Sale in Sellersville, PA
- Homes For Sale in Wayne, PA
- Homes For Sale in Upper Darby, PA
- Homes For Sale in Furlong, PA
- Homes For Sale in Fairless Hills, PA
- Homes For Sale in Morton, PA
- Homes For Sale in Philadelphia, PA
- Homes For Sale in Cheltenham, PA
- Homes For Sale in Schwenksville, PA
- Homes For Sale in North Wales, PA
- Homes For Sale in Abington, PA
- Homes For Sale in Berwyn, PA
- Homes For Sale in Kennett Square, PA
- Homes For Sale in Plymouth Meeting, PA
- Homes For Sale in Warrington, PA
- Homes For Sale in Harleysville, PA
- Homes For Sale in Hatboro, PA
- Homes For Sale in Allentown, PA
- Homes For Sale in Levittown, PA
- Homes For Sale in Doylestown, PA
- Homes For Sale in Bensalem, PA
- Homes For Sale in Morrisville, PA
- Homes For Sale in Bryn Mawr, PA
- Homes For Sale in Perkasie, PA
- Homes For Sale in Glenolden, PA
- Homes For Sale in Royersford, PA
- Homes For Sale in Quakertown, PA
- Homes For Sale in Lansdale, PA
- Homes For Sale in Croydon, PA
- Homes For Sale in Huntingdon Valley, PA
- Homes For Sale in Feasterville Trevose, PA
- Homes For Sale in Chalfont, PA
- Homes For Sale in Bristol, PA




